Position den Innentemperatursensors bei Daikin Perfera FTXM20A

Hallo zusammen,

ich lese jetzt seit ca. 1,5 Jahren fleißig mit. Im Sommer habe ich 2 Duo-Multisplit-Anlagen mit jeweils 2 Innengeräten vom Typ Daikin FTXM20A9 (Perfera) installiert. Da eine Anlage aufgrund der noch relativ hohen Außentemperaturen und damit einem noch zu geringen Wärmebedarf sehr stark taktet (ca. 10-12 x pro Stunde) würde ich gerne den Temperatursensor ein wenig dämmen und somit träger machen. Kann mir jemand sagen wo sich der Innentemperaturfühler bei den Perferas dieser Generation befindet?

Falls er sich direkt auf der Platine befindet würde ich gerne versuchen diesen mit einem Tropfen Silikon zu bedecken. Falls das nicht funktionert, ist das auch schnell wieder rückgängig gemacht. Falls es doch einen Sensor mit Kabelanschluß gibt, wäre das natürlich ideal.

Der dürfte auf der kleinen Platine sitzen, wo der Sensor für IR und die LED sitzt und auch der Taster. Also irgendwo rechts unten am IG. Dürfte leider ein SMD-Bauteil sein, müsstest du also runterlöten, um den irgendwie zu dämmen.

10-12 x pro Stunde kann ich mir eigentlich nicht vorstellen, man darf das Takten nicht verwechseln mit den IGs, die ein- und ausschalten. Takten spielt nur dann eine Rolle, wenn der Verdichter aus- und irgendwann wieder einschaltet. Das siehst du, wenn du den Strombedarf zumindest minütlich mitloggst.

Ja, ich beobachte das Aussengerät mit einem Shelly. Ich zeichne die An-/Abschaltvorgänge mithilfe des Aktivitätsprotokolls auf. So sehe ich genau wann das Aussengerät einschalten und abschaltet. Trotz Bedarfsstuerung bei 40% habe ich derzeit die Taktrate von ca. 10-12 pro Stunde. Wenn das Gerät eine Weile aus war und der Raum etwas runtergekühlt ist, läuft die Anlage natürlich länger. Dann dauert es ca. 20 min bis zum ersten Takt.

Ich will den Sensor nicht ablöten. Mein Plan war diesen mit einem Tropfen Silikon zu bedecken, damit er etwas träger wird.

Ich glaube, das wird kaum was bringen. Ich musste meinen Sensor sehr stark in Styrodur einpacken und auch noch Glaskugeln als “thermische Last” reinlegen, damit ich auf vernünftige Werte kam (1-3 Takte pro Stunde).

10-12 finde ich schon heftig, weil die Geräte eigentlich einen Kompressorschutz haben, der dafür sorgt, dass nicht zu häufig eingeschaltet wird. Meine MHI taktet so, dass sie 3min Auszeit und 5min Heizzeit nicht unterschreitet. Von mehr hatte ich bisher auch noch nicht gehört.

Hast du Zeiten, wie lange die minimale Auszeit ist und wie lang die minimale Heizzeit?

1 „Gefällt mir“

Vorhin: 2,5 min aus, dann 6,5 min an

Da Duosplit:

  1. laufen beide IG?

  2. Wie groß sind jeweils die Räume?

  3. Türen offen?

Beide Räume ca. 16 m2. Türen offen. Beide Innengeräte sind im Heizbetrieb.

Die Anlage moduliet meist bis ca. 250 W herunter. Selten unter 200 W.

Mal probiert den Offset zu verstellen oder einfach die Temperatur um zwei oder drei grad höher einstellen….???

Sollte doch dem Takten am einfachsten entgegenwirken….

Wie kann man den Offset verstellen?…………und was bewirkt das?

Gab es hier im Forum schon….

Seite 244

Aber die Temperatur höher zu stellen, geht eigentlich genau so…

Sind die Faikin-Module keine Option?
40€ pro Innengerät + 5€ für nen Xiaomi Mi2-Temperatursensor.
Wenn du dann in den Settings den Thermostat-Modus aktivierst und den Faikin-Automode damit kombinierst kannst du eine Hysterese einstellen zusätzlich zur Bedarfssteuerung.

Die Innengeräte versuchen halt die Innenraumtemperatur bestmöglich konstant zu halten.
Das schaffen sie tatsächlich auch, aber eben mit einer nicht unbeachtlichen Zahl an Taktvorgängen.
Ich habe mir das letzten Winter (im Januar!) für 3 Tage angesehen und es hat nicht sinnvoll aufgehört. (Hat 6-8x pro Stunde getaktet 72h am Stück)
Immerhin schon positiv, dass sie bei dir überhaupt unter 250 Watt geht.
Bei mir wollte sie nichtmal unter 400 Watt.

Hab dann erst mit der Bedarfssteuerung gespielt (im Winter wenn die Heizlast höher ist ist das schon sehr sehr hilfreich um viele Taktvorgänge zu vermeiden. Kann aber sein, dass man die Werte mal anpassen muss um genug Leistung zu haben).
Und dann noch mit KNX eine Hysterese gebaut.

Beides hilft gut.
Vor allem in Kombination. Wobei die Bedarfssteuerung Schritt1) ist!
In den kalten Zeiträumen hat es dann gar nicht mehr getaktet.
In den wärmeren Zeiträumen war es zumindest deutlich reduziert.

Hab jetzt seit ein paar Tagen Homeassistant am Laufen und regel das fortan über die Faikin-Module dann automatisch.

Was direkt über Faikin ohne Home-Assistant geht
Thermostatmodus
z.b 22°C Solltemperatur. ±0,5°C Hysterese (die ist auch einstellbar)
(Heizen bis 22,5°C, Heizen beenden. Ab 21,5°C wieder Heizen)

Was über Faikin-Module mit Home-Assistant geht

Bedarfssteuerung dynamisch

Unter 21,5°C automatisiert z.b volle Leistung erlauben.
Ab 21,5°C auf 40% Bedarfssteuerung drosseln.
(kann man theoretisch auch noch feiner Abstufen)

Beides zu kombinieren ist in meinen Augen das Optimum was mit beschränktem Aufwand zu erreichen ist um Takten bestmöglich zu reduzieren.
Da 40% Bedarfssteuerung die Leistung auf etwa 300 Watt max limitieren wenn es denn ein 4KW-Außengerät ist hat man da schon einen guten Hebel.

Sensor dämmen kann man zwar probieren.
Aber Wirkungsvoll ist in meinen Augen als Schritt 1) eine Anpassung der Bedarfssteuerung und als Schritt 2) da dies vor allem bei geringerer Heizlast noch nicht wirklich gut hilft ist halt eine künstliche Hysterese.

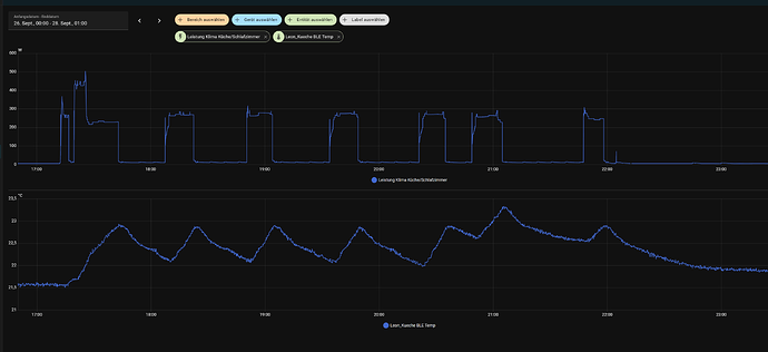
War jetzt heute noch am ausprobieren. An Tagen wie jetzt sieht das bei mir dann so aus.
(Es lief aber nur ein Innengerät weil es im Schlafzimmer noch nicht kalt genug ist um Heizen zu müssen)

Im Winter wenn dann die Bedarfssteuerung ausreichend Limitierung ist um ein Takten zu vermeiden wird die Temperatur dann auch konstanter. Jetzt wo es noch wärmer sind sind die Temperaturschwankungen noch kein Problem. Hätte man die im Winter würde man es mehr spüren. Das lässt sich aber mit Hilfe der Bedarfssteuerung ganz gut vermeiden.

Out of the Box ohne irgendwas zu ändern läuft die 2MXM nicht gut.
Oder anders gesagt, bei mir lief sie nicht gut. Vielleicht haben andere Leute bessere Erfahrungen. Habe auch 2x2KW Innengeräte. Meiner Meinung nach Schritt 1) Bedarfssteuerung
Das geht ja auch über die Onecta-App. Muss man ab und an etwas anpassen.

Würde ich an deiner Stelle erstmal machen und über den Winter beobachten.
Das ist rein was die Effizienz angeht schon völlig ausreichend für ein gutes Ergebnis!

Und wenn das nicht reicht würde ich mir die Faikin-Module ansehen, dort den Faikin-Auto-Mode aktivieren UND den Thermsotat-Modus aktivieren für eine künstliche Hysterese in Kombination mit externem Temperatursensor.

Und am saubersten kann man das dann wenn man die Bedarfssteuerung nicht manuell sondern automatisiert anpassen will über Home Assistant machen.
Dann braucht es gar keine Eingriffe mehr.

Muss man halt wollen. Ob sich das LOHNT ist ein anderes Thema.
Nur mit der Bedarfssteuerung wird man schon gut was erreichen.
Bedarf aber etwas Anpassung da 40% wenn es kalt wird irgendwann nicht mehr reichen sondern man nachjustieren muss. Aber auch das ist nicht so wild.

Je nachdem, welche Möglichkeiten man hat, wäre auch folgendes denkbar als Anregung: Man positioniert ein Leuchtdiode über dem Temperatursensor oder einfach einen simplen Widerstand. Dann hat an einen kleinen Mikrocontroller oder meinetwegen auch eine simple Schaltung mit einem NE555, der bestimmte Perioden diesen Widerstand oder die LED bestromt. Dadurch steigt die Temperatur am Sensor um 2-3 Grad und die Anlage heizt dann nicht. Schaltet die Schaltung dann z.B. nach 30min ab, fängt die Anlage an zu heizen. Im Grunde unterdrückt man so, dass die Anlage in bestimmten Zeitabschnitten heizt.

Vorteil hier ist, dass es eine relativ einfache Modifikation in der Anlage selbst ist.

Was auch geht: Den Original Sensor (SMD) eingebaut lassen, aber einen Leiterzug zu dem Sensor durchtrennen und darüber dann einen externen Sensor anlöten. Man kann das so wieder komplett zurückbauen und beschädigt den originalen Sensor nicht. Man muss nur ausmessen, wie viel KOhm der NTC hat. In der Regel irgendwas um 5-10 K.

Bevor man das aufwändig so baut würde ich dann aber wirklich lieber Faikin und einen BLE-Sensor nehmen.
Der Einbau ist da ja echt keine Raketenwissenschaft (Strom bei Arbeiten immer Trennen und auf die PIN-Belegung achten, Pin1 vom S21-Port ist nicht wie man intuitiv denken würde zwingend links auf der Platine!), einfache Jumper-Cable gehen, man muss keine Kabel aufwändig bauen)
Man nimmt keine Änderungen vor. Man belegt lediglich den S21-Port.

Und der S21-Port ist bei den Innengeräten sowieso frei weil das WLAN-Modul woanders dran hängt.

Lässt sich auch noch feiner einstellen mit der Hysterese

Würde ich empfehlen zu aktivieren

image

Dokumentation und Software für den Temperatursensor findet sich ja im ESP32-Thread.

Würde bevor man da nen künstlichen Offset über Verzerrung des Temperaturwertes oder Widerstand baut lieber was nehmen was es schon gibt und was zuverlässig funktioniert.

Aber wichtig als erste Stellgröße ist für mich die Bedarfssteuerung.

(AUCH DANN wenn man es mit Faikin und externem Sensor macht!)
Vielleicht reicht aber auch nur die Bedarfssteuerung schon aus für ein zufriedenstellendes Resultat.
Würde da als Zeitraum den ganzen Winter betrachten.
Ein paar Taktvorgänge in den Übergangszeiten ruinieren die Effizienz jetzt nicht nennenswert.
Wichtig sind die Monate mit hoher Heizlast. Da kommt es drauf an!

1 „Gefällt mir“

Was auch noch mit Bordmitteln geht: Steuerung über Timer, also z.B. nur alle 2 Stunden mal 30min heizen lassen.

1 „Gefällt mir“

Welche Lüfterstufe hast Du eingestellt? Auto, oder manuell?

Innwelche Richtung hast Du den Luftstrom gestellt?

Ich würde erstmal mit dem Luftstrom und der Ausblastrichtung rumprobieren.

Evtl hat die Anlage einen “thermischen Kurzschluss”.

WOW! Vielen Dank für den vielen Input an Alle!

Ich habe jetzt erstmal die Zieltemperatur etwas höher gesetzt. Die Bedarfssteuerung habe ich ja schon von Anfang anbei 40% drin. Das werde ich jetzt erstmal einige Zeit beobachten.

Wenn das nicht zufriedenstellend geht, schaue ich mir die Lösung Faikin + ext. Temperatursensor an. Ich wusste bislang nicht, dass das auch ohne HomeAssistant geht. Das ist eigentlich dass was ich gerne hätte. Ich habe auch noch eine MIDEA R290-Anlage laufen. Die läuft klasse, da sie die Follow-Me-Funktion hat. Was mir aber nicht ganz klar ist, wo cih das Faikin-Modul “anklemme”.

Die Lüfter laufen auf AUTO. Ich werde auch noch ein wenig mit der Ausblasrichtung experimetieren, Ich glaube aber, dass da wenig Effekt sein wird, da die Anlagen nicht direkt auf die offene Tür blasen können (Einbauposition).

Auf jeden Fall erstmal herzlichen Dank an Euch. Ich werde in den nächsten Tage berichten, wie sich die Sache entwickelt.

Schau mal hier:
* Daikin - ESP32 Faikin Modul

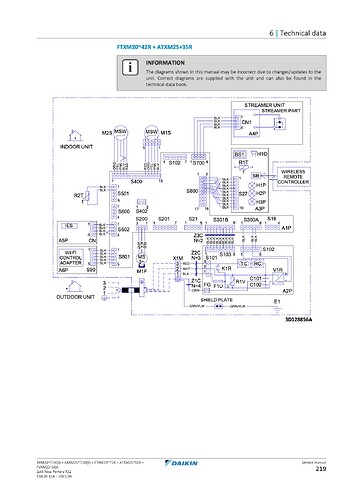
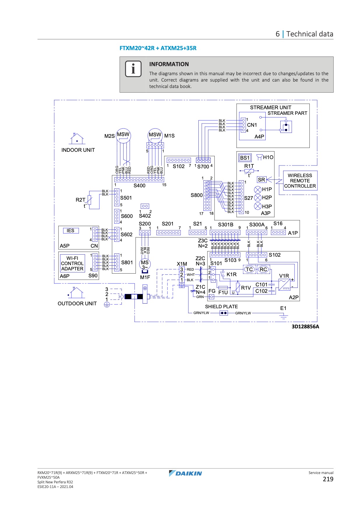
Nimm mal die Verkleidung deines Innengerätes ab. Dort ist der Schaltplan aufgeklebt. Bei einer Perfera sollten die Sensoren R1T und R2T am S501 angesteckt sein. Irgendwo hab ich mal ein Bild mit dem Sensor gesehen. Das war ein Fertigteil so weit ich das noch in Erinnerung habe.

So sieht es bei bei der FTXM-A aus. Der Innensensor müsste der R1T sein.

Bei der FTXM-R sitzt der Sensor auf der Platine.