Welche Multi-Split-Klima für mein Projekt

Hallo,

ich saniere gerade ein Haus aus der Gründerzeit.

Hier gibt es ein Dachgeschoss, was bisher mit Gas betrieben wurde.

Das Dachgeschoss wurde in den 90igern nach dem damaligen Standards an den Dachschrägen gedämmt.

Leider kann ich zu dem Gasverbrauch nichts sagen, da die Heizung bisher über einen zentralen Zähler lief, mit mehreren Gasthermen daran. Gefühlt werden die Räume sehr schnell warm.

Nun zu meinen Vorhaben:

Da die Gasheizung schon sehr alt war, habe ich die bereits entfernen lassen.
In Zukunft sollen die Räume mit einer Multi-Split-Klima beheizt und gekühlt werden.

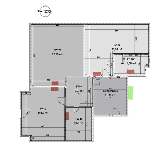
Die Etage besteht aus 2 Ferienwohnungen. Im Grundriss mit FW- und EZ- bezeichnet.

Gern würde ich die Räume mit einer Multi-Split betreiben. Ursprünglich war der Gedanke, eine 5-fach Multi-Split zu nehmen, aber wie ich hier gelesen habe, sollte man das lieber auf 2 Multi-Split aufteilen. (3-fach in FW- und 2-fach in EZ- ?)

Mögliche Einbauort habe ich schon mal rot markiert. Die grüne Markierung wäre das AG. Dort wäre auch Platz für ein zweites. Die Rohre können leicht über den Spitzboden in die Zimmer verlegt werden.

Folgend Anforderungen gilt es zu erfüllen:

  • Zuverlässige Heizleistung das ganze Jahr.
  • Leiser Betrieb, da auch in den Schlafräumen benutzt.
  • Im Bad habe ich wegen Platzmangel evtl. an Truhengeräte gedacht.
  • Leicht zu bedienen, da es Ferienwohnungen werden sollen.

Eine erste Recherche hat mich bei einer 5-fach MS auf dieses Gerät gebracht:
Klimaanlagen Panasonic Penta Split 7+7+7+7+7 Z Etherea CU-5Z90TBE

Folgende Fragen stellen sich mir aktuell:

  • Welche alternativen Hersteller könnt ihr empfehlen?
  • Ist das Konzept grundsätzlich richtig gedacht und realisierbar?
  • Welche Leistung sollten die Innengeräte haben?

VG Tino

Wie ist denn die Normaußentemperatur?

In Sachen Dimensionierung kann man Null Aussagen machen, wenn man nicht die Heizlast oder den genauen Aufbau der Wände und des Daches kennt. Da wirst du einen Heizlüftertest machen müssen.

Bei Multisplit siehts gar nicht so gut aus für ein völlig sicheren Betrieb. Eigentlich sind ja die Daikins hier im Forum recht beliebt, aber die neigen zum Einfrieren. Da müsste man zumindest eine Wannenheizung nachträglich installieren. Mitsubishi Heavy, Mitsubishi Electric und Toshiba könnte man sich noch anschauen. Zur Heavy gibts hier einige Erfahrungen.

Laufende Anlagen im Schlafzimmer in der Nacht wird nicht jeder Gast gut finden. Auch wenn eine andere Anlage an der gleichen Multisplit läuft, hört man Abtauzyklen im Schlafzimmer.

Einfache Bedienung: Ich würde Kabelfernbedienungen installieren, dass sind kleine Bedienpanels, die man an die Wand schrauben kann.

Alles, was es irgendwo zu verstellen gibt, werden Gäste verstellen.

Hi Tino,

Hast du einen Plan wie du das Kondenswasser von den IG abführest und wie Brauchwasser erzeugt wird?

Grüße

M

Speziell wenn es Ferienwohnungen werden und es die - einzige - Heizung sein wird: Da wäre Redundanz ev. nicht verkehrt… Zumindest so weit, dass mit Pech nur die Heizung einzelner Räume ausfällt - und nicht die von 2 ganzen Wohnungen.

Ich denke da wären Urlaubsgäste ggfs. sehr “unentspannt”, wenn die gesamte Heizung im tiefsten Winter ausfällt…

(Ausgenommen die würden gerne Berlin Jänner 2026 “nachspielen” - aber ist denke ich eher unwahrscheinlich)

Bei Multianlagen fällt zb. bei einer Undichtigkeit oder einem Problem mit dem Aussengerät ALLES aus. Möglicherweise gibt es Defekte bei einzelnen Innengeräte - wo der Rest noch läuft. Das weiß ich nicht. Aber wenn es eine Undichtigkeit oder ein Problem beim AG gibt, steht alles.

Ich könnte mir auch gut vorstellen, dass so eine Multianlage ev. ziemlichen Radau machen könnte "(Aussengerät) wenn da Urlauber am Abend in die Unterkunft kommen und alles voll aufdrehen…

Bei Monosplit Geräten sind die einzelnen AG meistene vergleichsweise größer dimensionert und haben mehr Reserven - können als ggfs. leiser laufen…

Das Kondeswasser will ich mit Kondensatpumpen über den darüber liegenden Spitzboden abführen.

Die Redundanz war ja vorher mit der einzelnen Gasheizung auch nicht gegeben.
Und da gab es auch mal einen Ausfall der Heizung im Winter. Da müsste man ja immer eine 2. Heizung zur Sicherheit am Start haben.

Grundsätzlich will ich an dem Konzept Splitklima festhalten. Da ich dann im Sommer auch kühlen kann und eine PV leicht Strom liefern kann.

1 „Gefällt mir“

Die Normaußentemperatur ist -13,7 Grad.
Das Zimmer EZ-W bekomme ich aktuell mit einen 2KW Heizlüfter auf ca. 20 Grad geheizt. Dauer zwar einen Tag aber am Ende hat man eine angenehme Temp in dem Raum.

Daher denke ich, dass für die großen Zimmer ein 3,5KW IG reichen sollte.

Mich würde halt Interessieren, welchen Hersteller ihr empfehlen würdet für den Anwendungsfall.

Da hast du völlig Recht :+1: Da war ich jetzt selber von betroffen, hatte aber zum Glück vorher schon die Split Anlagen angeschafft.

Ich spreche das aber deshalb - gezielt - an, weil bei so einer Splitklima ggfs. schon die Wahrscheinlichkeit größer sein könnte, dass ev. mal eine Undichtigkeit auftritt. Könnte, nicht muss. Und das könnte dann auch praktisch direkt ein Unterschied sein: Denn wenn dann ggfs. im tiefsten Winter eine Undichtigkeit auftritt und sich das AG irgendwo an der Fassade befindet - wo man ggfs. selbst mit “nur” Leiter schwer rankommt - dann ist es ggfs. eine ganz andere “Hausnummer” das wieder in Stand zu setzen - als wenn der Techniker im Heizraum etwas an der Heizung repariert…

Ich nehme an, von Verkäufern hört man sowas nicht - meinem Vernehmen nach werden die Kunden dahingehend (was ich hier so lese…) nicht “sensibilisiert”.

Natürlich ist es grundsätzlich SEHR VIEL angenehmer, wenn man nur ein einzelnes AG benötigt. Aber man sollte sich eben darüber im Klaren sein, was es ggfs. dann bedeuten könnte.

1 „Gefällt mir“

Genau das gleiche wie bei einer normalen Heizung. Dann kommt halt ein Techniker raus. Zumal die wenigsten wohl nur mit einer Split-Klima heizen, der Großteil davon ist vermutlich hier im Forum.

Hier heizen ja wirklich viele, vermutlich 80% mit Klimasplits. Ich würde sagen, dass 99% der Anlagen wegen “Altersschwäche” ausgetauscht werden. 10 bis 15 Jahre wirklich keine Seltenheit. Undichtigkeit in der Montage habe ich noch nie gehört. Gibt es aber natürlich auch. Aber ich halte Klimasplits schon für zuverlässig.

Natürlich geht auch mal eine Anlage vorzeitig defekt, aber nicht häufiger als LWWP oder Holzvergaser.

Das meiste was ich gehört oder gelesen habe, da zeigt es sich vorher, dass die Anlage einfach nicht mehr die Leistung bringt. War bei meiner Mutter so. In der Heizperiode 2023/2024 ging der Verbrauch hoch, gleichzeitig hat die alte Klimasplit es nicht mehr geschafft das Haus bei Temperaturen unter dem Gefrierpunkt warm zu bekommen und entsprechend mit Direktstrom zugeheizt. Nach dem nächsten Sommer wurde dann eine neue Anlage montiert.

Schon. Aber die Reparatur gestaltet sich halt ggfs. schwieriger, wenn da ein AG im DG an der Fassade hängt wo man erst mal hinkommen muss…

Da ist die Heizung im Heizraum eben einfach besser zugänglich;) Da ist man im Trockenen und warmen Raum und hat jederzeit Licht. Und da Heizungen ja i.d.R. im Winter ausfallen - ist das dann bei einem AG eben einfach schwieriger. Sei es wegen der Witterung, dem Licht (wird halt früh dunkel) oder eben der Zugänglichkeit.

Natürlich kann man - auch hier im Forum - nur darüber sprechen, wie toll doch alles ist usw.

Aber macht das Sinn :thinking:

Wenn man das mal gehört hat, kann man sich halt so seine Gedanken darüber machen und entscheiden. Wenn nicht, wird man eben ggfs. total unvorbereitet davon überrascht…

Wenn man sich Gedanken macht, könnte es zb. dazu führen, dass man das AG gut zugänglich montiert - wenn möglich - anstatt schwer zugänglich usw.

Mit “hier” meinst du die Region in der du lebst? Also nicht “hier im Forum” :thinking:

Denn hier im Forum habe ich schon öfter gelesen, dass Anlagen wegen zu wenig Kältmittel ausgefallen sind. Und noch sehr viel öfter werden es Leute nicht hier reinschreiben, wenn das passiert ist… Ich glaube das betrifft auch nicht gezielt diy - denn die nehmen sich i.d.R. sehr viel mehr Zeit. Es liegt einfach in der Natur der Sache. Ich habe in meinem Leben schon so viel Pfusch von “Profi´s” erlebt, dass ich hier meine ursprüngliche: “Lass es den Profi machen, dann ist es ordentlich und es kann nichts passieren” Einstellung abgelegt habe.

Ist aber auch klar, sind alles nur Menschen - wenn das jemand beruflich macht kommt der Zeitdruck dazu und speziell bei den Split Klima Sachen werden ja durch den “hype” darum sehr viele neue “Handwerker” hinzugekommen sein, die dann ggfs. sehr “zeitoptimiert” arbeiten.

Wenn man dann eine Multisplit Anlage mit 5 IG hat, dann sind das einfach sehr viele Bördelungen die ordentlich erstellt und noch wichtiger auf Dichtigkeit geprüft werden müssen. Da kann sich eben schnell eine minimale Undichtigkeit einschleichen, die dann mit Pech erst im folgenden Winter ihre Auswirkungen zeigt… Die Anforderungen an Dichtheit sind hier ja wirklich sehr hoch und man merkt es in der Praxis ja erst wenn es zu spät ist und die Anlage abschaltet.

Ich auch :+1: Die Dinger sind jahr quasi seit vielen Jahren oder gar Jahrzehnten ausgereift. Aber es kommt eben der Faktor Dichtigkeit hinzu, den es in der Form bei einer “konventionellen” also nicht WP Heizung nicht gibt. Der Ausfall hat dann eben ggfs. gar nichts mit den Geräten zu tun.

Klar, defekt gehen kann alles.

Und das klingt für dich nicht nach Kältmittelverlust :thinking:

Kennt man doch vom Auto: Wenn die Klima nur mehr schwach kühlt, fehlt zu 99,99% Kältemittel = Undichtigkeit im System. (Und in extrem seltenen Fällen ev. wirklich der “natürliche Schwund” über die Jahre…)

Aber da in Split Klima Anlagen keine Schläuche verbaut sind, über die Kältemittel verloren gehen kann über die Jahre, ist hier immer Undichtigkeit schuld wenn was fehlt.

Lasst uns die Diskussion über die Sinnhaftigkeit abkürzen. Ich werde im Jahr 2026 keine neue Gasheizung mehr einbauen lassen. Eine zentrale WP steht in dem Haus noch nicht zur Verfügung. Und diese könnte die Räume auch nicht kühlen.

Das AG würde auf einen Flachdach im 2. OG stehen. Dieses wäre daher auch leicht zugänglich im Störungsfall. Lautstärke sollte dort auch keine Problem sein.

In einer ersten Recherche bin ich auf diese MSK gestoßen:
Klimaanlagen Panasonic Penta Split 7+7+7+7+7 Z Etherea CU-5Z90TBE

Diese könnte man ja auch mit 2 AG aufbauen. Eine für die FW- (3 IG) und eine für die EZ- (2 IG).

Für mich stellt sich die Frage, wäre ich evtl mit einer Daikin oder Mitsubishi besser bedient.

Klingt doch gut :+1: Auf deinem Grundriss ist nicht sichtbar, dass dort etwas “darunter” ist

Bzgl. Ausfallsicherheit und ggfs. Effizienz wären 2 AG sicher besser.

Eventuell dann sogar so aufteilen, dass 1 AG jeweile 2 Wohnungen bedient - dann hätte beim Ausfall 1 Anlage die Wohnung immer noch Beheizung von der 2.

Sehr individuell. Ggfs. mit dem absprechen wo du kaufst und der einbaut. Es sollte idealerweise die sein, die der gut beschaffen kann und mit der er sich auskennt;)

Letztlich hängt es auch viel davon ab wie man die bekommen kann (Preis) und auch auf persönliche Vorlieben etc. Schlecht werden die alle nicht sein.

Sind halt alle nur A+ (die verlinkte Pana)

Ich hatte das bei einer Anlage.

Bevor die Anlage einen Fehler gemeldet hatte zeigte sich das übrigens in Form von Effizienzverlust.
Das ließ sich anhand des Home-Assistant-Logs vor allem rückblickend sehr schön berechnen.

Die Zeit bis die Anlage einen Fehler gemeldet hat hat doppelt so lange gebraucht als das Erreichen des Zeitpunktes, wo man rückblickend an den Daten schon sehen konnte, dass da was nicht stimmt. Bei manchen Anlagen scheint eine Menge Kältemittel fehlen zu müssen bis die Anlage selbst mal was merkt oder meldet.

Das klingt für mich nach Kältemittelverlust.
Andere Mängel wo die Leistung so deutlich einbricht, die Anlage aber trotzdem noch läuft sind zwar möglich, dürften aber bei Wärmepumpen aber in der Regel sehr unwahrscheinlich sein.


Frage zu der Auslegung hier im Thread.

Sind die Wohnungen regelmäßig vermietet?
Ansonsten wäre es in meinen Augen sehr sinnvoll darauf zu achten, dass die Anlage auch eine Einstellbare Heiztemperatur von z.b 10-14°C zulässt.
Es gibt einige Hersteller, da kann man die Temperatur teilweise beim Heizen nur auf 16-18°C einstellen. Wenn man die Wohnung nicht durchgehend bewohnt ist das im Winterhalbjahr aus Kostensicht ja durchaus ein sehr gravierender da wichtiger Punkt da ein komplettes Ausschalten der Anlage in meinen Augen aus Schimmelschutzgründen definitiv nicht zu empfehlen ist.

Das Abtaugeräusche an allen Innengeräten hörbar sind wurde ja schon erwähnt.
In der Regel ist es denke ich angenehmer, wenn Schlafräume nicht unbedingt an einer Multisplit hängen damit Nachts auch wirklich Ruhe ist wenn Mieter sich entscheiden das Innengerät auszustellen. Aber das muss man halt individuell sehen.

Das Mieter alles erdenkliche was man nur umstellen kann auch umstellen werden wurde ja schon erwähnt. Da wird es vermutlich auch keine perfekte Lösung für geben.

1 „Gefällt mir“

Gute Zusammenfassung

:+1:

Das ist die eine Fraktion. Dann gibt es noch die andere Fraktion von Diy-lern, die aus Mangel an Werkzeugen, Kenntnissen & Co. das irgendwie zusammenpfuschen.

Leistung war nicht eingebrochen. Sind ca 80m2 beheizte Fläche. Bei der alten Anlage war es ab einer bestimmten Aussentemperatur notwendig mit Direktstrom zuzuheizen. Das ist hier in Schweden der Standard. Bei der Anlage war es dann so, dass dies schon ab einer etwas höheren Aussentemperatur notwendig wurde.

Die Anlage war schon 14 Jahre alt. Gleichzeitig sind die Stromkosten ab 2022 stark angestiegen und Heizen wäre auch mit der alten Anlage teuer geworden, wenn diese noch gut gelaufen wäre. Mann hätte auch das Aussengerät reinigen müssen, da war der Wärmetauscher mit organischem Material (vermutlich ehemals Laub) völlig zu.

Wir haben alle Häuser auf Vordermann gebracht und auch insgesamt auf mehrere Immobilien verteilt ca 80kWp PV installiert. Da war es einfach angebracht auch die alte Anlage auszutauschen. Insgesamt 12 Anlagen montieren lassen.

Wie gesagt bei meiner Mutter 80 Jahre alt und die Anlage war aus 2010. War damals das Top-Modell. Aber die Anlagen sind einfach viel besser geworden.

Jetzt mit einer Nepura wird im Grunde überhaupt nicht mehr mit Direktstrom zugeheizt.

Alles in allem bei diesem Haus den zugekaufter Strom von irgendwo 16.000kWh auf 6.000kWh runter. (10kWp PV, aber schlechte Dachneigung)

Regional. Schweden.