Split Klima Projekt für das ganze Haus

Hallo Zusammen,
Ich möchte den Versuch wagen (Freigabe der Hauseigenen Regierung liegt vor), unser Haus nur mit Split Klima und in den Bädern mit Infrarot zu heizen.

Hier meine Eckdaten, Ideen, Fragen und Sorgen:

Haus 1991
Wohnort Willich Nordrhein-Westfalen
97 qm plus Keller (Keller ohne Heizkörper)
Zimmertemperatur 19-20 C
Aufgeteilt auf 3 Etagen
Aktuell im Originalzustand
In den nächsten Jahren sollen Fenster getauscht werden und eine Zwischenwand Dämmung folgen.
Dezentrale Lüftung ist in Überlegung.

PV mit 14,9kWp und 8er Wechselrichter.
Jahresstrom Verbrauch mit BWP, beläuft sich bei 3 Personen auf 2,88kWh, die Anlage produziert im Jahr ca.11kWh.

Folgende Überlegung mit Daikin Style

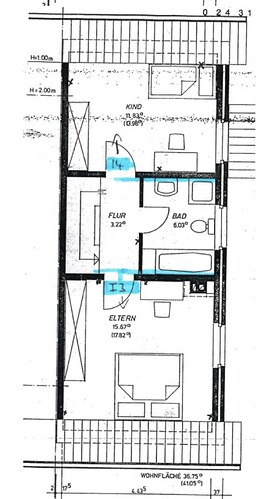
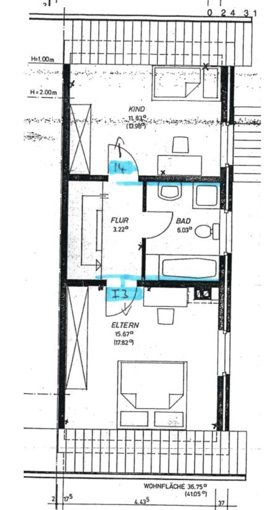
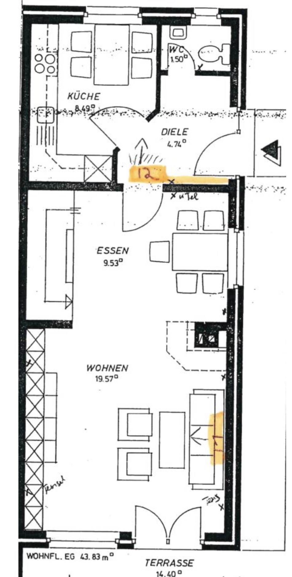
Erdgeschoss :
1x Aussengerät 2MXM40A2V1B9 für 2x Innengerät

  1. Innengerät FTX20C2V1BW , für das Wohnzimmer 30qmm
  2. Innengerät CTX15C2V1BW, für Küche 8qmm, Flur 5qmm, Gäste WC 2qmm.
    Gäste WC notfalls, mit Ergänzung einer Infrarot Heizung 200 Watt
    Obergeschoss: 1x Aussengerät 3MXM40A2V1B9 für 3x Innengerät
  3. Innengerät FTX20C2V1BW für das 1OG Schlafzimmer 19 qmm
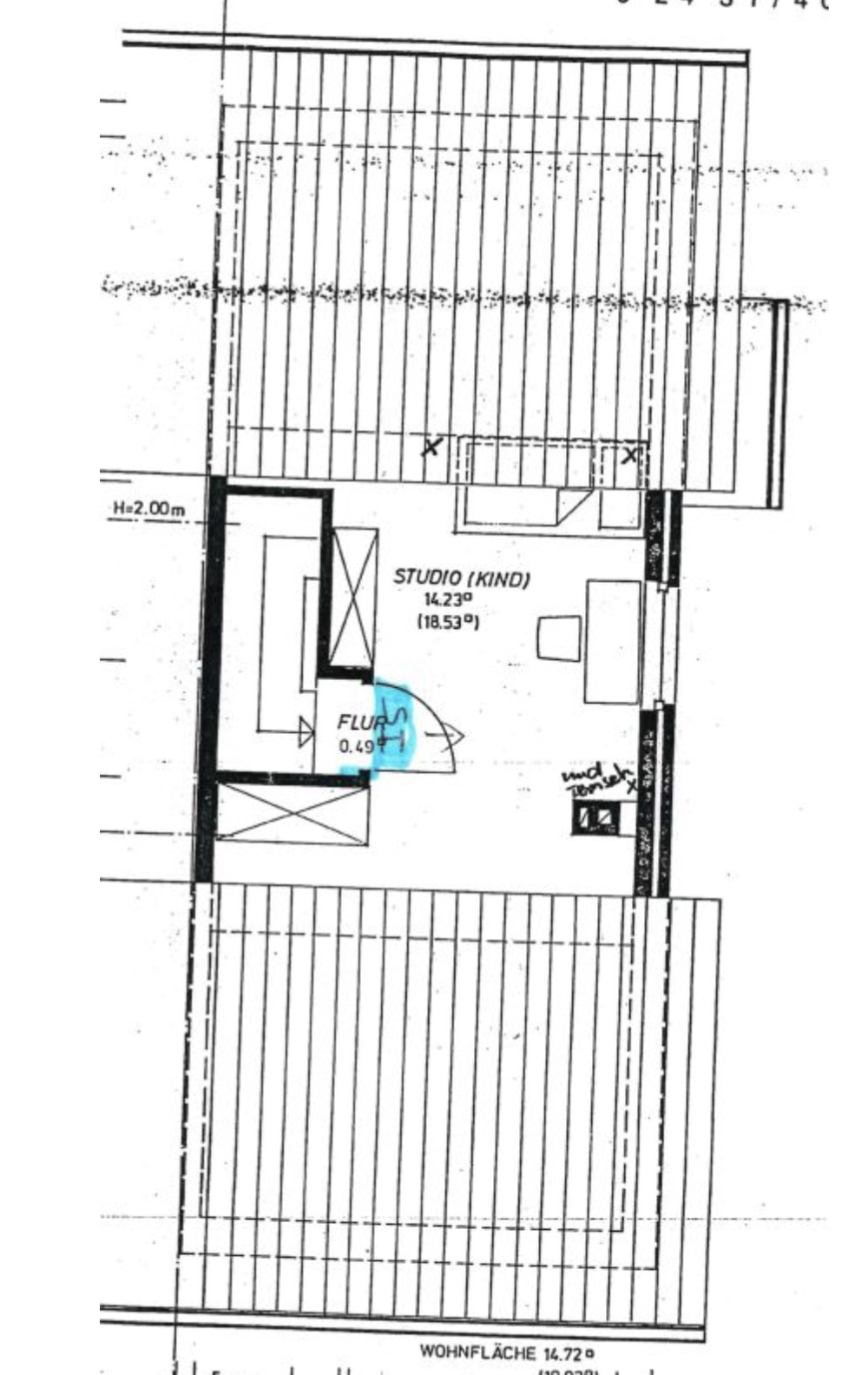
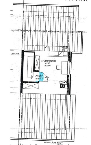
  4. Innengerät CTX15C2V1BW für das 1 OG Kinderzimmer 14qmm
  5. Innengerät FTX20C2V1BW für das 2OG, aktuell Arbeitszimmer 19qmm
    Bad 1. Etage 6qmm Infrarotheizung. 400Watt

Ich weiß mehr Aussengeräte mehr Effizienz, aber das will ich optisch nicht.
Das ganze Szenario soll 2 Jahre im Versuchsmodus laufen, danach soll bei positiven Ergebnis, Gas abgedreht werden und langfristig die Heizkörper entfernt werden. Aktuell läuft eine Gastherme von 2019/ Jahresverbrauch 2024 9500 kW ,die BWP hat Warmwasser ab Ende Juni übernommen.

Fragen

  1. Auslegung passt für Szenario vor und nach der Dämmung? Die Daikin online Auslegung, ändert bei minimaler Werte Veränderung die Innen- und Aussengeräte…

  2. Habe große Bedenken die Anlage zu Groß auszulegen und es kommt zum grossen Takten.

  3. Wie vermeidet Ihr, das Takten in der Übergangszeit?(Home Assistant?)

  4. Haltet ihr es für realistisch ohne nachrüsten einer Luft Wasser Wärmepumpe und ich erhoffe mir ein Cop von mind 3,8, zu heizen? Ist das realistisch ?
    Hier fällt die Temperatur selten lange unter 0 und dann eher minus 2—3 grad Celsius.

  5. Glaubt ihr man bekommt das ganze für bis zu 20000 Euro , ohne die 30 Prozent Zuschuss. (Versuche diese trotzdem zu erhalten.)

  6. Gibt es einen threat um zu sehen wo wie was man die Zuschüsse selber beantragt. Wie sind euere Erfahrungen die 30 Prozent zu erhalten .

  7. was sagt ihr zur Wahl zur daikin Style? Alternativen?

  8. Passt das eine Innengerät für die Küche das Gäste WC und den Flur. es ist genau auf die Türen justiert und die Küchentür ist nicht vorhanden und Gäste wo kann für den Temperatur Abfall auf unter 16 grad fällt

Meine nächsten Schritte sind,
Beratung über Energieberater ( Heizlastberechnung)
Angebote im Winter einholen
Umsetzung im Frühjahr




2 „Gefällt mir“

Interessantes Projekt! Ich hab ähnliches bei unserem RMH in Angriff genommen, aber erst knapp zwei Monate Heizerfahrung. Wie offen ist Euer Flur? Könnt Ihr da drüber ggf. Wärme verteilen? Die Rohre für unsere zentrale KWL haben wir damals von Spitzboden parallel zum Kamin bzw. in Raumecken nach unten gezogen (soweit es nicht vom Spitzboden bzw. den Drempeln aus direkt ging). Bei Euch keine Option aber ggf. kann man bei Euch auch out the box einen Weg finden. Unsere Energieberaterin und ein zweiter Anbieter wollten die klassische Deckenabhängung im Treppenhaus machen ... www.ubakus.de für eine eigene (erste) Energiebilanzrechnung ist bekannt?

Ich denke ich werde einen Großteil von außen verlegen und durchs Bad . Da sind die Kabelkanäle nicht so auffällig und die Fliesen werden irgendwann sowieso getauscht , dann wird alles versteckt .

Die Berechnung wird vom Energieberater übernommen.

Was denkst du über die Innenansichten i2 , ist das realistisch für die 3 kleinen Räume ?

Du meinst den Richtung Küche? Würde ich schwer von aus gehen. In der Küche produziert man ja auch noch Wärme und sitzt nicht still rum.

1 „Gefällt mir“

Stylisch und Emura finde ich beide sehr schick, ich habe im EG die Emura, im OG aber Perfera. Ist doch einen ganzen Tacken günstiger.

Da tue ich mich gerade schwer zwischen Preis Leistung. Also sind die günstigeren Daikin Modelle , sehr viel schlechter in der Effizienz/ Funktion.

Perfera ist sowohl vom Wirkungsgrad als auch von den Funktionen her ein Topmodell. Das ist kein Billomodell, sondern das sehr gute Standardgerät.

Optik ist bei Stylish/Emura etwas moderner und die haben ne etwas bessere Luftverteilungsfunktion aber das war es im
Wesentlichen auch.

Das ist zu allgemein formuliert. Daikin hat von ganz billig bis ganz teuer und natürlich unterscheiden die sich in der Effizienz. SCOP liegt bei den billigen bei 4,0, bei mittleren bei 4,6 und bei den guten bei 5,1-5,3. Gibt auch noch die Sarara Ururu, die bringt es glaube ich auf 5,9.

Ok ich versuche es genauer . Wie in meinem Eingangs thread beschrieben möchte ich um die 20.000Euro ausgeben und eine tatsächlichen Jahreswert beim scop von mindestens 3,8 erreichen ( Infrarot Heizungen mit einberechnet ). Das wäre ja laut deiner Beschreibung mit jedem Daikin Gerät machbar? Besser wäre mir natürlich viel lieber .
Ich weiß halt nicht wie gut die theoretischen Werte, den realistischen entsprechen.

Deswegen dürft ihr mich gerne mehr hinterfragen und auf den richtigen Weg bringen. Dafür habe ich das Thema eröffnet , damit meine Fragen weniger und mein Wissen mehr wird . :smiley:

Wer mit Split-Klima heizen will über die ganze Heizsaison, fährt in der Regel am besten mit A+++ Anlagen, also SCOP 5,1. Die Mehrkosten bekommt man in der Regel wieder raus. Wobei es da auch auf die Einkaufsquellen ankommt.

Eine A+ Anlage mit SCOP 4,0 wird in der Regel teurer werden über den Verbrauch. Es sei denn, man hat Räume, die seltener geheizt werden. Wir haben so ein Gerät im Schlafzimmer, wo die nur recht wenig zum Heizen läuft, waren nur 60 kWh im ganzen Winter. Da macht das Sinn.

Was man auch bedenken muss: So einige Dinge, die man möchte, wie z.B. ein möglichst leises Außengerät, gibts nur bei den besseren Anlagen. Deshalb würde ich da auch eher eine A+++ Anlage nehmen, also Perfera, Emura, Stylish.

Bei Multisplit muss man nochmal etwas genauer schauen, welche SCOPS die erreichen. Da liegen die SCOPS ja in der Regel niedriger. Vor allem, je höher die Leistung des AGs ist, um so schlechter der SCOP.

1 „Gefällt mir“

Ok das bestärkt mich in Richtung stylisch weiter dran zubleiben.

Wie ist den deine Einschätzung/ Meinung dazu, dass ich für drei kleine Räume Flur/ Küche / Gäste WC, ein Gerät verwenden möchte.
Ich sollte ergänzend erwähnen, die Tür zwischen Flur und Küche ist nicht vorhanden. Die Tür vom Gäste WC ist natürlich vorhanden , ist aktuell solange meine Kids klein sind, aber auch eher geschlossen . Daher glaube ich, dass ich dort eine Temperatur und Zeit gesteuerte 200/300 Watt Infrarot Heizung benötige.

Kann man machen, ich würde das Gerät aber nach Möglichkeit in den Raum hängen, wo man die meiste Wärme braucht. Das wäre hier die Küche. Im Flur ist es eigentlich vollkommen egal, ob da 21 Grad oder nur 15 Grad sind. Und auf der Gäste-Toilette finde ich Temperaturen bis 15 Grad auch noch komfortabel. Wir haben mitunter im Winter mal 12 Grad, da wirds schon etwas ungemütlich.

Im Bad wäre es was anderes, wenn an duscht oder badet. Da brauchen viele deutlich höhere Temperaturen. Aber Toilette sehe ich entspannt.

Aber ich vermute, du hast trotzdem nur die recht kleine Türöffnung in der Wand. Da geht nicht viel Wärme durch. Wenn ich es richtig verstehe, hast du noch keine Dämmung, da kann es sein, dass du den Flur auf 25 Grad heizen müsstest, damit 20 Grad in der Küche ankommen. Das ist Mist, geht auch auf die Effizienz und mal schnell hochheizen in der Küche geht auch nicht.

Das ist ja gerade der große Vorteil von Split-Klima, dass man sehr schnell hochheizen kann. Damit kannst du viel sparen, in dem du nur bedarfsweise heizt. Das macht man sich zunichte, wenn die Anlage nicht dort hängt, wo man die Wärme braucht.

Wenn du dich hingegen dafür entscheidest, 24/7 durchzuheizen, ist die Situation etwas entspannter.

1 „Gefällt mir“

Also Stylish ist faktisch eine reine Optiksache, in Sachen P/L bist du mit Perfera besser dran. Das ist auch eine A+++ Anlage

Ok, dann werde ich mir beide anbieten lassen und schauen , was Optik mehr kostet

Ich finde die Position grundsätzlich gut bis ideal. Es kommt dann aber auf die Dämmung des Hauses, insbesondere des WCs drauf an.

Wir haben das Innengerät unserer Hauptanlage im Eingangsflur. Von dort steigt auch ein Teil der Wärme nach oben. Positiver Nebeneffekt im Flur: Nasse Kleidung, Regenjacken etc trocknen schnell. (Unsere Kleinkinder sind viel draussen und prodizieren bis zu 3x nasse Jacken am Tag :joy:)

Wir haben auch die Tür zum Badezimmer offen. Keine extra Heizung im Bad. Funktioniert gut. Und Schweden ist es üblich die Badezimmertür offen zu haben, wenn keiner drinnen ist. Es sind immer nur unsere Deutschen Gäste, die die Tür zu machen.

Küche wird funktionieren.

Vorteil vom Innengerät im Flur ist, dass man ohne, dass es stört eine hohe Lüfterstufe wählen kann.

Mal eine zusätzliche Frage: Die Winter an deinem Wohnort wie sind in den letzten Jahren so die Temperaturen gewesen? Sind die über längere Zeit im zweistelligen Minusbereich gewesen? Den im Winter das heizen um so kälter es wird, um so mehr Energie wird verwendet.
Heize und kühle hier selber mit einer Gree Klima mit einem Truhengerät das ganze 90m² Holzhaus. Im Bad ist noch eine 300W IR-Heizung an der Decke. Im Winter wenn es längeren Zeit tiefe Minus Grade hat habe ich noch einen Kaminofen mit dem ich entweder das Ganze Haus damit heize oder nur dazu heize.
Was man an Energie dafür braucht kommt im Winter schon einiges zusammen und in der Zeit kommt auch von der PV nicht so viel. Habe jetzt mal geschaut von Nov. bis Februar bin ich bei einem Tageshausverbrauch zwischen 20 - 25kWh da muss man aber bedenken hier ist um einiges weniger am Raum m³ was beheizt werden muss.

2 Stellig im minus Bereich gibt es bei uns eher sehr selten . Wenn wir es unter 0 schaffen , dann ist das in den letzten Jahre viel.

Dämmung ist noch nichts verändert worden. Aber die Fenster müssen in den nächsten 5 Jahren gemacht werden und ich hoffe man kann bei uns Einblasdämmung machen .

Habt ihr im Badezimmer auch die Toilette, wie oft in Deutschland üblich? Der Grund, warum man die Tür zu macht, sind ja die Gerüche, die sonst ins Haus reinziehen würden nach einem Toilettengang. Wie managt ihr das?

Ja, die Toilette ist auch im Bad.
Nach einem Toilettengang kann man ja eine Weile die Tür geschlossen oder halb geschlossen halten.

Im Bad und in der Waschküche sind aber auch die Abluftkanäle. D.h. die Luft zieht eigentlich immer in Richtung dieser Räume. D.h. Gerüche sind eigentlich kein Thema.

Bei uns halten sich Gerüche und Feuchtigkeit im Bad länger, wenn die Tür dauerhaft zu ist.

Im Sommer, wenn der Temperatur-Unterschied zwischen innen und aussen klein, oder nicht vorhanden ist, kann dies problematisch sein.

In den 70ern Öl- und Energiekrise etc wurden viele Häuser übrigens abgedichtet um Energie zu sparen. Wir sprechen in dem Zusammenhang von "kranken Häusern", also Schimmel etc. Erst später kam dann die mechanische Ventilation und kontrollierte Lüftungskonzepte etc.

Es gibt eine Studie in Schweden: 1948 wurde die Luft in Wohnräumen noch ca 1,2 Mal die Stunde ausgetauscht, bis 1991 war dies bis auf 0,5 Mal die Stunden gefallen.

Bei uns zuhause zieht es durch den einen oder anderen Spalt und bei Wind und Sturm fällt die Temperatur merkbar. Aber wir haben immer gute und frische Luft im Haus.

Off-topic:
Die Krise der 70er und 80er ließt sich interessanterweise sehr ähnlich wie die Krise ab Feb 2022. Hat aber damals in Schweden dazu geführt, dass nahezu vollständig elektrifiziert wurde. (damals natürlich nicht der Transport- und Verkehrssektor).

1 „Gefällt mir“