Hi ihr Profis,
ich entschuldige mich vorab dass meine Fragen sicher in einem Sammelthread schon mal beantwortet wurden, aber die sind einfach wahnsinnig mächtig ![]()
Die SCOP Werte sind ja (immer?) für +7°C angegeben. Gibt es Listen wie sich dieser bei niedrigeren Aussentemperaturen verhält? 0°C und -10°C wären interessant.
Auch lese ich in den Threads immer wieder von takten der Innengeräte bei "Überdimensionierung". Wie viel Puffer soll man sich hier denn lassen?
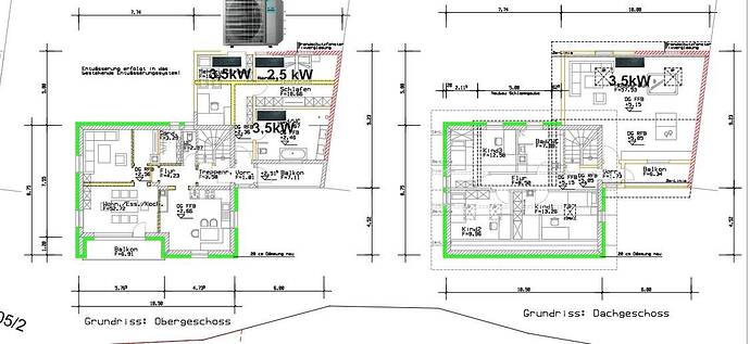
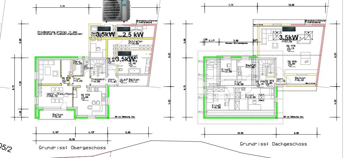
Ich will 3 Räume á 20qm beheizen (Bad/Schlafen/Aufenthaltsraum)... mit KfW55 Standard (K-Wert 0,25) komme ich also immer auf gut 1kw Wärmebedarf bei -15°C + 22°C Raumtemperatur.
Ich will natürlich weder bei -15°C Kalt im Haus noch will ich ständiges Takten. Was ist hier dann die beste Lösung?
Ich danke vielmals vorab und hoffe der Community auch etwas zurück geben zu können wenn ich meine Umbauten starte!



