Platzierung einer Split Klima

Hallo zusammen,

ich möchte bei mir im Keller eine Split Klima installieren. Hauptsächlich im Sommer zum entfeuchten und im Winter zum zuheizen wenn die Sonne scheint und die PV Anlage Leistung bringt. Der Keller ist komplett beheizt und mit Heizkörpern ausgestattet. Wärmeerzeuger ist noch eine Ölheizung. Der Keller hat 2 m Deckenhöhe und die Türstürze sind bei ca. 1,90 m.

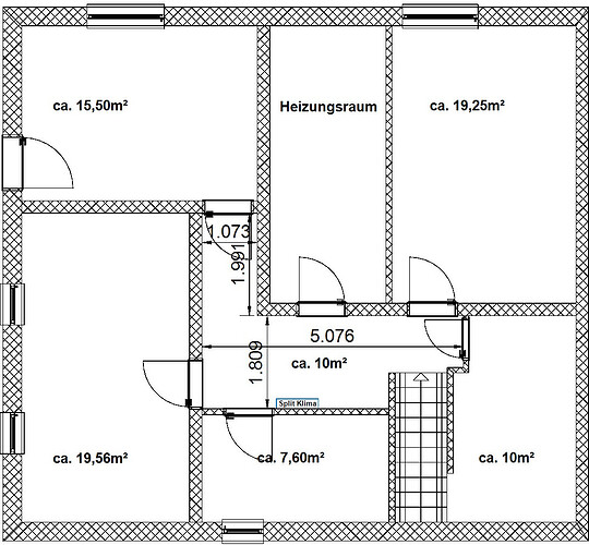
Mit geht es jetzt um die Platzierung der Inneneinheit. Würde der eingezeichnete Standort funktionieren um die Warme Luft im Keller zu verteilen oder heize ich damit nur den Flur? Die Türen, ausser die der Anlage gegenüberliegende, sind größtenteils immer offen. Was meint Ihr?

Das wird nicht funktionieren. In den Räumen rechts, links und hinter dem IG schon mal gar nicht, im Raum direkt gegenüber möglicherweise, schräg links vom IG wegen Wurfweite und Wandecke nicht, schräg rechts vom IG wegen Winkel zum IG nicht.

Wenn es Dir nichts ausmacht, den Flur auf 30°C zu heizen, wirst Du zwangsläufig in die Räume drum herum etwas Wärme bekommen. Ob das aber sinnvoll und effizient ist…?

Das Problem bei dieser Flurbehizung ist, dass du durch jede Tür nur sehr begrenzt Wärme weg bekommst. Pro Grad Temperaturdifferenz so etwa 150-200 Watt. Weiteres Problem ist, dass in dem recht kleinen Volumen eines Flurs die Lufttempratur schnell ansteigt und die Klimaanlage dann abschaltet. Oder sie arbeitet in einem ineffizienten Bereich, wenn du dort z.B. 28 Grad hat.

Ich gehe mal davon aus, dass du alle Türen offen lassen willst. Das wären dann immerhin 6 Türen. Da könnte schon was gehen.

Ich würde allerdings ein Gerät nehmen, wo du die Leistung limitieren kannst, was mit einer Daikin über die Bedarfssteuerung recht gut funktioniert. Vielleicht kann es auch helfen, wenn du den Temperatursensor des IG noch verlegst oder dämmst, damit die Anlage nicht zu takten anfängt.

Du kannst das übrigens sehr gut testen: Nimm einfach einen Heizlüfter mit etwa 1000W, pack den dort hin, wo das IG hin soll und schau dir an, wie gut sich die Wärme in etwa 4 Stunden Dauerbetrieb so verteilt.

Interessant bei dir: Über den Türen gibt es keinen Raum mehr, wo sich Wärme staut, weil die Decken so tief sind.

Wie viel m² hat der Flur eigentlich?

Das Türenthema findest du hier, einfach nach "Tür" suchen:

1 „Gefällt mir“

Ich würde auch diese Stelle wählen. Da du ja überall Heizkörper hast, die noch etwas zuheizen können, sehe ich keine Probleme. Je nach Kosten der Anlage kann sich das schon lohnen.

Müssen denn alle Kellerräume beheizt werden? Ggf in dem Plan mal einzeichnen, wo gewünscht und wo der Ölbrenner mit seiner Abwärme das erledigt. Ne BWWP würde auch trocknen und Du könntest mit Lüftungsrohren die Zu/Abluft verteilen. Kostet im Winter natürlich Wärme im Keller statt welche zu liefern.

Wenn der Treppenaufgang nicht geschlossen ist, verzieht sich die Wärme sofort nach oben.

1 „Gefällt mir“

Danke für die bisherigen Infos. Ich habe im ersten Beitrag mal die Flurmaße und Zimmergrößen dazugeschrieben. Ich hatte gehofft das durch die niedrige Decke der Luftaustausch funktionieren könnte. Das Ziel ist nicht, alle Zimmer perfekt warm zu bekommen. Es soll nur zugeheizt werden,
damit der Ölverbrauch etwas sinkt und vor allem im Sommer entfeuchtet wird. Ausserdem soll die Split Klima später den Einbau einer um eine Nummer kleineren Luft-Wasser Wärmepumpe als Haupt Heizsystem ermöglichen und als Notfall Backup dienen.

Könnte eine kleine Split Anlage mit 2,5 Kw funktionieren oder ist der Flur so klein das die Anlage sofort ins Takten kommt? Ich dachte daran sie tief zu platzieren. Das einzige was sie wohl nie machen wird, ist kühlen.

Das mit dem Heizlüfter ist ein guter Tip. Muss ich mal schauen wo ich mir einen leihen kann.

Der Treppenaufgang ist verschlossen.

Wo passen überall Außengeräte hin ? Wären zwei 2er Multisplit Anlagen auch eine Option ? Dann könnte ich mir vorstellen dass man die Heizkörper im Keller ganz ausschalten könnte.

Grundsätzlich wird dein Vorhaben mit der Single Split schon klappen, zu einem geringen Anschaffungspreis eine akzeptable Lösung. Wenn die Wärme über die Treppe abhaut kann man auch über einen Vorhang an der Kellertreppe nachdenken, um die Wärme unten zu halten.

Das wird sie natürlich beim Entfeuchten immer machen. Entfeuchten geht nur, in dem die Anlage die Luft ordentlich runter kühlt und diese entzogene Wärme draußen landet. Das ist ein großer Unterschied zu einem Wärmepumpen-Luftentfeuchter, der technisch zwar genauso funktoniert, der die entzogene Wärme gleich wieder in den Raum zurückgibt.

10m² Flur ist schon recht groß. Ich heize den ganzen Winter mein 10m² Büro mit einer 2kW Anlage, das klappt völlig ohne Probleme. Das 10m² Schlafzimmer wird mit 2,5kW beheizt, klappt auch. Allerdings Raumhöhe 2,3 m.

1 „Gefällt mir“

Ich hab noch eine Frage dazu. Auf welche Höhe würdet Ihr die Anlage hängen wenn ausschließlich geheizt und getrocknet werden soll?

Deckenhöhe ist ja 2m. Kondenswasserabfluss ist kein Problem. Auf der Rückseite der Wand ist ein Bad und ein Abwasserrohr an das ich gehen kann.

An Geruchsverschluss denken wenn es direkt ans Rohr soll

Da gibt es (denke ich) kein pauschales richtig oder falsch. Tendenziell sollte eine Anlage die nur heizt weiter unten sein (warme Luft steigt auf…) und eine die nur kühlen soll eben sein (weil die kalte Luft ohnehin auf den Boden sinkt…)

Aber in der Praxis kommt es dann auf viele Sachen an:

Zb. gibt es Unterschiede wie die Anlage dann betrieben wird.

Soll sie maximal effektiv laufen - oder eher “Komfortorientert”?

Für maximale Effizienz ist es wichtig, den Temperaturhub so gering wie möglich zu halten und das Volumen entsprechend so groß wie möglich. Das bedeutet dann: Sehr große Mengen lauwarmer Luft - entsprechend dann auch ggfs. gut hörbares Innengerät (weil höhere Drehzahl).

Das bedeutet dann ggfs. man sollte sich idealerweise nicht direkt im Luftstrom befinden.

Andererseits wenn man es eher mit sehr warmer Luft laufen lässt, dann findet man es ev. sogar angenehmer direkt im Luftstrom zu sein etc.

Bei Montage zu weit unten könnte ggfs. der Luftstrom dann durch Möbel etc. blockiert sein - weiter oben könnte sie ev. “drüberblasen”.

Etc.

Das wichtigste hast du nicht beschrieben. Wie werden die Räume genutzt? Ist es eine Einliegerwohnung? Wird da ein Hobbyraum genutzt? Ich frage deshalb, weil du anscheinend die gesamte Fläche mit einer Split-Klima heizen willst, andererseits aber vermeiden möchtest in den einzelnen Räumen ein Innengerät zu installieren. Aber du hast ja auch nicht nur einen Heizkörper im Flur. Wie passt das zusammen?

Zum Entfeuchten gibt es einfachere Lösungen. Hier meine praktischen Erfahrungen zum „Entfeuchten „ mit einer Klimasplit (Daikin Perfera): Die Raumtemperatur beträgt 20 Grad. Umschalten auf den Modus „Entfeuchten“. In der App heißt es „Trocknen“. Weil da nichts entfeuchtet wird. Die Lamellen öffnen sich, es kann keine Temperatur eingestellt werden und der Ventilator läuft nicht.

Aus meiner Sicht gibt es keinen Entfeuchten Modus, sondern nur eine Einstellung zum trocknen der Kondensatwanne und des Wärmetauschers.

Standard ist im oberen Bereich, bei deiner geringen Deckenhöhe also so, dass über dem IG noch mindestens 5-10 cm sind.

Eine Klimasplit ist kein Entfeuchter.

Ich würde mich fragen was mit dem kalten Keller im Sommer passiert.

Vielleicht lieber nach den Ursachen gucken.

Und vielleicht eine taupunktabhängige Lüftung basteln, die den Keller immer durchpustet wenn die Luft (außen) trocken genug ist.

Im Winter die Feuchtigkeit "rausheizen" macht auch die Ölheizung mit den Heizkörpern (da ein Keller nie ganz dicht ist). Das macht die Klimasplit ab 5 Grad bestimmt sehr viel besser und vielleicht bis 0 oder -5 immer noch besser als die Ölheizung. Je nachdem wie alt und ineffizient die ist.

(Nachtrag: Bei feuchten Ecken helfen manchmal schon "große" 12V Lüfter an 5V. Die brauchen wahrscheinlich weniger als 0,5 W.)

Nachtrag zu "Eine Klimasplit ist kein Entfeuchter":

Elektrische Luftentfeuchter geben meißt ihre Verlustleistung an den Raum ab und Heizen ihn damit zusätzlich etwas. KompressorLuftentfeuchter (meißt ab 100W) können das Entfeuchten über 15 Grad noch aber meißt nicht gut, ab 18 Grad gut, drüber noch besser. Es gibt Themen dazu irgendwo.

Heimkino, Hobbyraum, Sportraum. In jedem Raum ist ein Heizkörper. Nur im Flur nicht. Es soll Zugeheizt werden. Nicht alleine mit der Split Klima geheizt werden.

Ich würde mich fragen was mit dem kalten Keller im Sommer passiert.

Vielleicht lieber nach den Ursachen gucken.

Die Ursache liegt im kalten Keller und warmer, Feuchter Luft im Sommer +Ausdünstungen beim Sport. Ganz normal.
Im Sommer kann ich dann mit der Split zuheizen, damit ich nicht immer zwischen Pullover und T-Shirt wechseln muss wenn ich bei heissem Wetter in den Keller gehe.

Ich denke ich werde die Anlage so auf 1,5m hängen.

Um hier noch ein abschliessendes Update zu geben:

Bei 0°C Aussentemperatur und ausgeschalteten Heizkörpern wird der Keller nur mit der Klima angenehm warm. Durch die niedrige Decke und die hohen Stürze verteilt sich die Wärme gut in den Räumen. Selbst der am weitesten entfernte Raum wird noch mitgeheizt, aber man merkt dort einen leichten Temperaturunterschied zwischen Eingang und dem hinteren Teil des Raumes.

Immer wenn die Sonne scheint und PV Überschuss da ist, heize ich momentan mit der Klima zu.

Im Sommer wird dann auch bei abgeschalteter Ölheizung zugeheizt und ich hoffe das bei einer höheren Grundtemperatur auch die Luftfeuchtigkeit zurückgeht, weil weniger Wasser an den dann wärmeren Oberflächen kondensieren wird.

1 „Gefällt mir“