Mein Sohn beabsichtigt den Kauf eines Hauses BJ 54
Keller - EG - 1.Stock - Dachgeschoss
Fläche pro Etage 38qm, Grundfläche DG ca. 25qm
Deckenhöhe 235cm
Das Haus wird komplett entkernt
Reihenmittelhaus => Dämmung links+rechts entfällt,
20cm EPS-Dämmung kommt auf Rückseite/Nord
Front/Süd (ich vermute 30er Wand) bleibt ungedämmt , Dämmung wg. nachbarseitigem Anschluss problematisch
Dachdämmung wird neu gemacht (mind. 30cm WLG035 oder besser)
Fenster+Türen kommen auch neu
Folgende Idee : Ich möchte im DG und EG mit je einer Splitklima-Anlage heizen (Daikin Perfera 3,5kW , damit habe ich Erfahrung,
die habe ich schon mehrfach verbaut und bin auch mit der Heizleistung /SCOP sehr zufrieden).
Da das EG und DG jeweils nur ein großer Raum ist, sollte das gut gehen.
Ich suche für dieses Szenario nach einer Heizungslösung für eine Heizun (g im 1. Stock, wo es mehrere kleine Räume hat.
Noch eine Klima / Multisplit oder Heizkörper mit Warmwasser + LWWP möchte ich vermeiden.
Warmluftverteilung, evtl. mit KWL ? Einfach normale elektrische Heizkörper zum Zuheizen ?´
Andere Vorschläge ?
Nachbarhaus (auch Reihenmittelhaus, nicht besonders gedämmt) hat ca. 1000l Öl (also ca. 11MWh) Energieverbrauch pro Jahr mit Warmwasser.
Viele Grüße
Ralf
brechnungen heizlast raumweise machen und danach heizung überlegen. wenn schon KWL angedacht ist, kann darüber geheizt und gekühlt im sommer werden. entsprechende heizregister in der grösse gibt es.
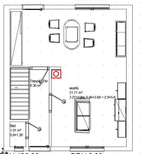
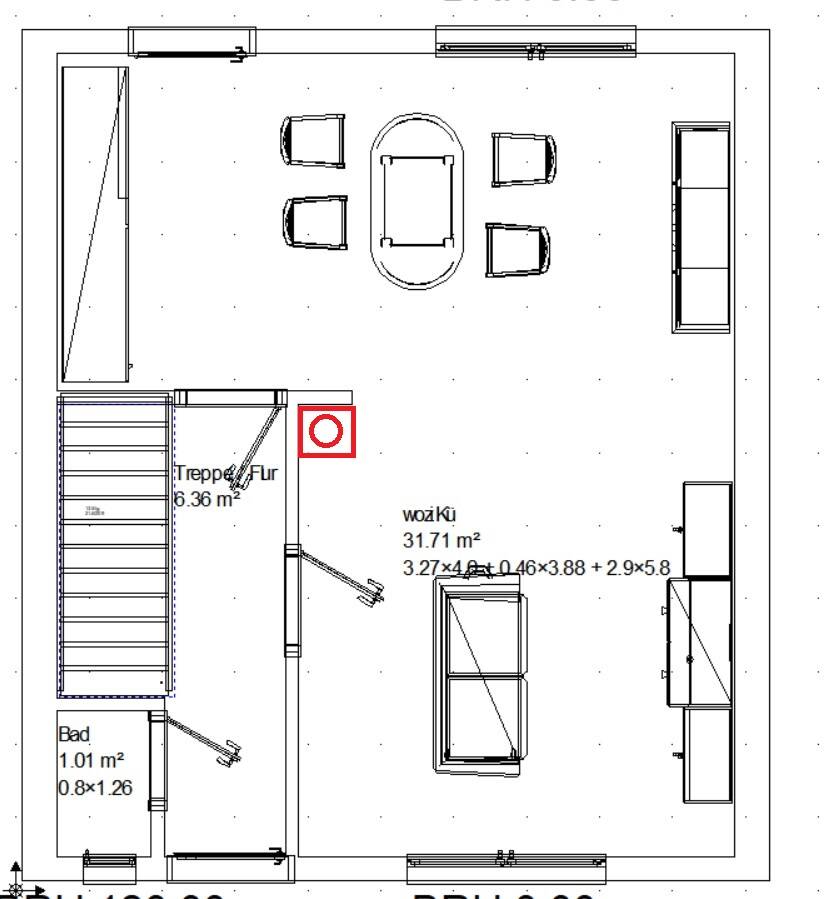
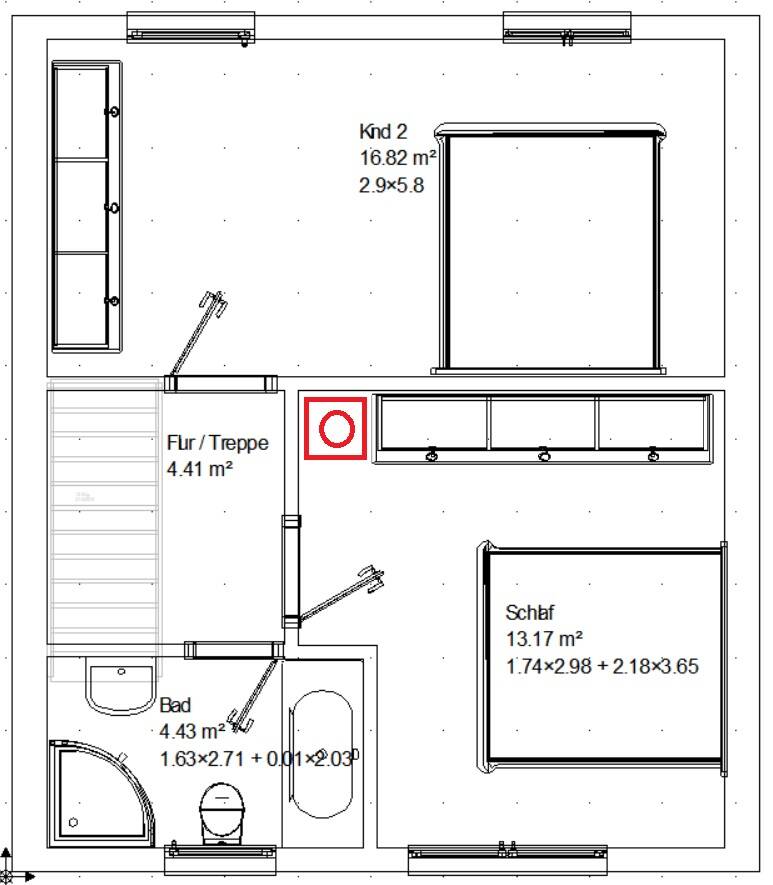
leider fehlt bei den zeichnungen die bezeichnung was was ist, also EG oder neu/alt oder oder ![]()
[quote data-userid="6645" data-postid="200001"]t
leider fehlt bei den zeichnungen die bezeichnung was was ist, also EG oder neu/alt oder oder ![]()
[/quote]
Die Etage mit dem einen großen Raum ist EG, die Etage mit mehreren Räumen und dem Bad ist der 1. Stock (2 mögliche Varianten)
Zeichnungen sind für nach dem Umbau, die jetzige Raumaufteilung ist anders.
Wenn noch die alten Heizungsrohre existieren, würde ich mir dafür ne gebrauchte BWWP mit 300l Speicher holen, ca. 500€. Die kann aufladen, wenn strom vom Dach kommt. Im OG mit warm unten und warm oben brauchst nit viel.
Falls möglich hinterlüftetes dach und die Klimas in den Spitzboden.
Mit der KWL bringst kannst Du aber nicht wirklich viel Wärme transportieren. Ggf. ne Option um Räume zu beheizen, die man nicht mit ein/zwei Splitklimageräten im Haus erreichen kann, wenn man wie wir ne Heizlast von typisch 1 kW, maximal 2 kW hat und gerade dabei ist, das alles neu aufzubauen.
[quote data-userid="28211" data-postid="200022"]Wenn noch die alten Heizungsrohre existieren, würde ich mir dafür ne gebrauchte BWWP mit 300l Speicher holen, ca. 500€. Die kann aufladen, wenn strom vom Dach kommt. Im OG mit warm unten und warm oben brauchst nit viel.
[/quote]
Es gibt keine alten Heizungsrohre , es waren Nachtspeicheröfen drin. Eine Mini-LWWP (Brauchwasser-WP) für den ersten Stock und normale Heizkörper wäre eine Option, vtl. besser als eine reine Elektroheizung zu nehmen.
Wie wäre es mit der Zwischenlösung? Es gibt Monoblock-Wärmepumpen die aussehen wie Heizkörper. Kosten pro Stück (je nachdem wo du kaufst und welche du kaufst) 1000-2000€ pro Stück. Die Bäder sind so klein, die benötigen sowas nicht, also da reicht wohl nen popeliger Heizlüfter aus. Die benötigen nur jeweils 2 Kernlochbohrungen nach draußen, draußen kommt ne Blende drauf. Unten die Split-Klima, oben im 1 Stock diese 2 oder eben 3 Geräte.
Nachteil: JAZ wohl eher um die 3 also mehr Stromverbrauch. Dafür aber Raumweise einstellbare Geräte, sieht aus wie ein Heizkörper unterm Fenster, braucht nur nen Stromanschluss.
1000l Öl wären knappe 12000kWh. Unten wird es wohl wärmer sein, also reicht die eine Split-Kiste mit einem Innengerät sicherlich aus. Oben kommen dann sowieso 2 oder 3 (je nach Anzahl der Räume) Monoblöcke hin, da reicht es dann sicherlich auch aus. In den Bädern Heizlüfter. Bei der Raumgröße.... Eine Brauchwasserwärmepumpe im Keller mit Außenluftanschluss (oder Keller entfeuchten) sollte entweder JAZ3 oder JAZ2 schaffen. Selbst JAZ2 ist immer noch die Hälfte an Stromverbrauch wie ein Boiler oder DLE, mit dem Vorteil des Warmwassererzeugens wie ein Boiler (also ggf. PV-Überschuss und daher Kostenreduktion).
Hast du mal einen Link zu so einem Teil ?
Er meint vermutlich sowas hier:
OK....die scheint aber ziemlich laut zu sein ?

bei meinen Daikin Perfera steht was von 19dBA ...die sind fast unhörbar..
Ist prinzipbedingt. Der Kompressor befindet sich ja innen, nicht außen. Und der Außenlüfter befindet sich auch innen.
Die Dinger sind recht unattraktiv, sind laut, ineffizient und brauchen 2 recht große Löcher in der Fassade. Vermutlich hat man auch eine schöne Wärmebrücke über die Löcher geschaffen.
Ich weiss nicht wie laut sie sind. Die Frage wäre, ob die Lautstärke bei maximalleistung des Lüfters erreicht ist, oder wenn draußen -15°C sind und deswegen der Kompressor nudelt. Das hier hat halt den Vorteil dass draußen kein Gerät steht bzw. an der Fassade hängt oder lange Kältemittelleitungen benötigt.
In dem Fall: Vermeide es nicht.
Nun fraglich wo das Außengerät dann hinsoll. Entweder auch auf dem Dach wie das Ding fürs Dachgeschoss oder auf dem Boden. In jedem Fall müsste man überlegen ob erst Dämmung oder nicht, wegen der Kältemittelleitungen und Stromkabel.
Vielleicht dort wo die Treppe ist die Außengeräte? Also jeweils auf Etagenhöhe. Dann immer über der Tür zum Zimmer verbauen.
Das wäre unten bei so nem großen Raum ne Single-Split (was größer evtl?), 1 ET 2 oder 3 mit einer Multisplit (wenn du gut mit den Daikin gefahren bist, ich selbst stehe immer noch an bei meiner Multisplit daher ist meine Empfehlung für sowas eher mau).
Und DG (hast keinen Grundriss geliefert) auch nur eine Single-Split.
Dann hättest du die drei Anlagen übereinander, sieht nicht ganz so unordentlich aus glaube ich, von außen gesehen.
Sie sind mit absoluter Sicherheit lauter als Split-Geräte. Für größere Badezimmer wäre es eine überlegung wert, auch Räume die nur sporadisch geheizt werden. Für mich sind die immer als Alternative zu einem reinen Elektroheizkörper gedacht. Wer mit Tibber und PV arbeitet, dem würde ich sogar eine Nachtspeicherheizung empfehlen bei dem der billige Strom in das Ding gepumpt wird und dann bei Bedarf nur der Lüfter angeworfen wird für die Raumtemperaturhaltung.


